Internat za učenike uz objekat Osnovne škole za djecu sa smetnjama u razvoju
Internat za učenike projektovan je uz postojeći objekat osovne skole namijenjenoj obrazovanju djece koja su na različite načine ometena u svom ranom razvoju. Ovaj objekat treba da pretstavlja integralnu cjelinu sa postojećom školom i svim njenim sadržajima.
Društveni, a posebno izraženi, problem za roditelje čija djeca rastu sa različitim vrstama smetnji u njihovom razvoju pokušali su djelimično ublažiti i riješiti predstavnici Italijanskog crvenog križa. Izgradnja objekta Internata u kojem je predviđen cjelodnevni, ali ne i stalni boravak u toku njhovog školovanja, uvrstio bi mnogo veći broj ove kategorije djece u školovanje jer se veliki broj ove djece nalazi izvan sjedišta Specijalne škole u Tuzli. Ova djeca radne dane u sedmici provodila bi u Internatu a vikende bi provodili u svojim porodicama. Dalje unapređenje njihovog boravka u školi bilo bi pronalaženje porodica-skrbnika u Gradu koje bi zamijenile internatski smještaj tako da Internat za neke od njih imao ulogu privremenog smještaja.
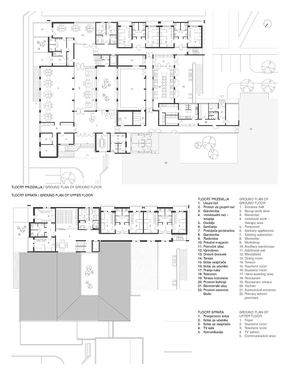
Osnovni sadrzaji Internata su sobe za spavanje i boravak za 50 učenika razlicitog pola i starosne dobi, prostori za resocijalizaciju, prostori za grupnu i individualnu terapiju, fiskulturna dvorana, restoran sa kuhinjskim pogonom i pratece pomoćne prostorije.
Svi prostori su projektirani u mjerilu korisnika sa primjenom materijala koji svojim izgledom pruzaju toplinu i ugodan boravak sa ciljem da se ucenici koji borave u njima sto prijatnije osjecaju.
Najveci dio realiziranih sadrzaja smjesten je na nivou prizemlja, jedan broj soba za spavanje nalazi se na spratu, a dio nastavnickih kabineta i terapijskih prostora u potkrovlju. Kompletan objekat projektovan je za pristup i kretanje fizicki henikepiranih osoba.
Ukupna korisna površina Objekta iznosi 1.760 m2.
https://www.ambijent.ba/index.php/detaljan-prikaz-projekta/39-internat-za-ucenike-tuzla#sigProId0b8a3e61fd
